Hochwertig kernsanierte Doppelhaushälfte in Pfedelbach – Wohnen mit Charakter und modernstem Komfort



























Beschreibung
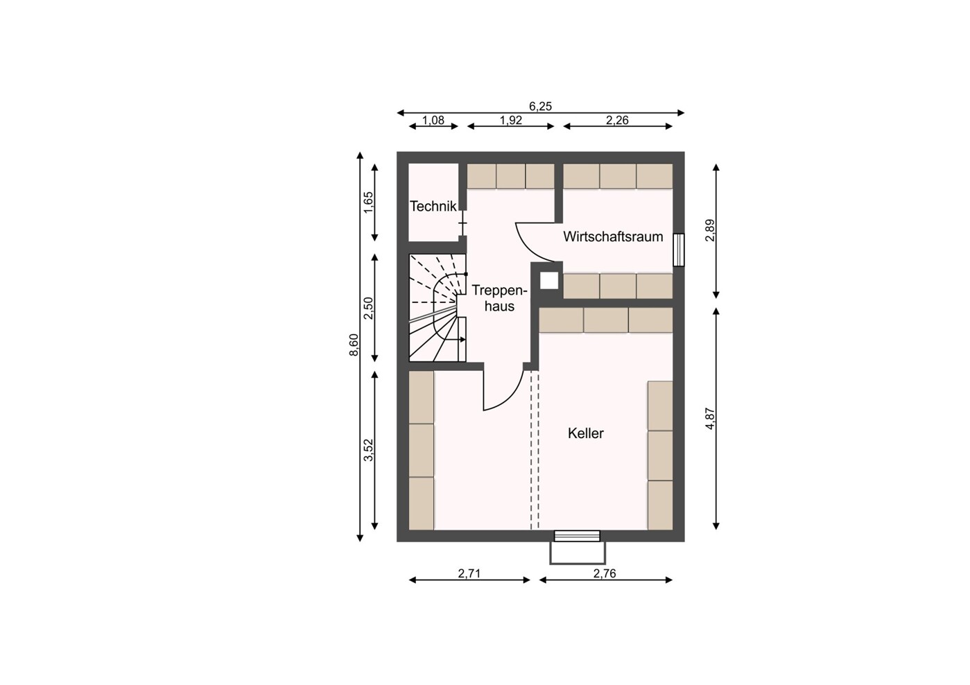
Diese charmante Doppelhaushälfte vereint den besonderen Charakter eines um 1900 erbauten Hauses mit dem Wohnkomfort eines Neubaus. Im Jahr 2025 wurde die Immobilie umfassend kernsaniert und technisch wie optisch auf ein zeitgemäßes Niveau gebracht.Im Rahmen der Kernsanierung wurden unter anderem die komplette Elektrik erneuert, sämtliche Böden neu verlegt sowie die Innenwände frisch verputzt. Hochwertiger Vinylboden sorgt in den Wohnräumen für eine warme und moderne Atmosphäre. Eine neue, stilvolle Treppe verbindet die Etagen harmonisch miteinander.
Das Haus verfügt über zwei modern ausgestattete Badezimmer, die mit zeitgemäßem Design und hochwertiger Ausführung überzeugen. Eine neue Einbauküche fügt sich perfekt in das Wohnkonzept ein und bietet sowohl optisch als auch funktional höchsten Komfort.
Auch energetisch wurde die Immobilie deutlich aufgewertet:
Das Dach wurde gedämmt, die Fassade ebenfalls energetisch ertüchtigt und neu gestrichen. Das Dachgeschoss wurde vollständig ausgebaut und schafft zusätzlichen, attraktiven Wohnraum.
Die vorhandene Gastherme aus dem Jahr 2005 wurde 2025 umfassend generalüberholt und durch zahlreiche neue Komponenten ergänzt. Zudem wurden im gesamten Haus neue Heizkörper installiert, sodass ein effizientes und zuverlässiges Heizsystem gewährleistet ist.
Ein weiteres Highlight sind die besonderen, integrierten Lichteffekte, die dem Haus eine außergewöhnliche Atmosphäre verleihen und echte Blickfänge darstellen. Eine moderne Videosprechanlage sorgt zusätzlich für Komfort und Sicherheit.
Der Außenbereich überzeugt mit einer hochwertig verarbeiteten Holzterrasse – der ideale Ort für entspannte Stunden im Freien.
Diese Immobilie ist perfekt für Käufer, die den Charme eines historischen Hauses lieben, jedoch nicht auf die technische und optische Qualität einer umfassenden Sanierung verzichten möchten. Hier heißt es: Einziehen und wohlfühlen.
Lage
Die Immobilie befindet sich in attraktiver Lage von Pfedelbach, einer beliebten Gemeinde im Hohenlohekreis mit hoher Lebensqualität und naturnahem Wohnumfeld.Pfedelbach überzeugt durch die gelungene Kombination aus ruhigem Wohnen im Grünen und einer sehr guten Infrastruktur. Einkaufsmöglichkeiten für den täglichen Bedarf wie Supermärkte, Bäckereien und Metzgereien sind bequem erreichbar. Darüber hinaus stehen Apotheken, Banken sowie weitere Dienstleistungsangebote direkt im Ort zur Verfügung.
Familien profitieren von Kindergärten und einer Grundschule vor Ort. Weiterführende Schulen befinden sich im nahegelegenen Öhringen, das in wenigen Fahrminuten erreichbar ist.
Die Verkehrsanbindung ist hervorragend: Über die Bundesstraße B19 gelangen Sie zügig in Richtung Öhringen sowie nach Schwäbisch Hall. Der Autobahnanschluss an die Bundesautobahn 6 ist ebenfalls schnell erreichbar und bietet eine optimale Verbindung in Richtung Heilbronn, Nürnberg und Stuttgart.
Der nahegelegene Bahnhof in Öhringen mit Anschluss an die Stadtbahn Heilbronn sorgt zudem für eine komfortable Anbindung an den öffentlichen Nahverkehr.
Insgesamt bietet Pfedelbach eine ideale Wohnlage für alle, die naturnah leben und dennoch auf eine gute Infrastruktur und kurze Wege nicht verzichten möchten.